京都市右京区太秦和泉式部町

価格 1,050万円

1/10
Point

南西角地・南向きにつき陽当たり良好!デイリーヤマザキJR花園駅前店まで徒歩5分、ツルハドラッグ京都花園駅前店まで徒歩6分、スーパーサンディ花園店まで徒歩5分、スーパーライフ太秦店まで徒歩4分、セブンイレブン京都双ヶ丘店まで徒歩5分、ウエルシアダックス右京太秦店まで徒歩6分、スーパーマツモト新丸太町店まで徒歩7分、業務スーパー太秦店まで徒歩8分、セブンイレブン京都常盤店まで徒歩8分、スイトピアまで徒歩1分、ファミリーマート太秦森ヶ東町店まで徒歩4分、ウエルシアダックス右京太秦東店まで徒歩5分、太秦安井公園まで徒歩6分で生活施設・買い物充実してます♪現況空き家につき即内覧・即ご入居可能!

物件コード「45」をお伝えください。

電話でお問合せ LINEでお問合せ

物件情報

価格 1,050万円
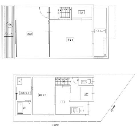
間取 3DK
住所1
京都市右京区太秦和泉式部町 地図
学区 太秦 890m/太秦 1,190m
種目 中古戸建
交通 JR嵯峨野線 花園駅まで 徒歩8分
地下鉄東西線 太秦天神川まで 徒歩10分
嵐電嵐山線 嵐電天神川駅まで 徒歩10分
土地面積 46.93m²
建物面積 52.24m²
建ぺい率1 60%
容積率1 160%
建物構造 木造
地目 宅地
土地権利 所有権
用途地域1 第一種住居地域
取引態様 仲介
西暦築年月 1972/05
引渡時期 即時
諸費用(全て)
接道(全て)
西
セットバック
特色 公営水道、公共本下水、都市ガス、即入居可、賃貸中・賃貸人退去要、駐車場付、軽1台駐車可、天井収納庫付!床暖房付、浴室暖房換気乾燥機付、賃貸中オーナーチェンジ物件!
右記注目ポイント以外の長所・短所は電話やメールでの個別のご質問でお答えさせていただきます! 南西角地・南向きにつき陽当たり良好!デイリーヤマザキJR花園駅前店まで徒歩5分、ツルハドラッグ京都花園駅前店まで徒歩6分、スーパーサンディ花園店まで徒歩5分、スーパーライフ太秦店まで徒歩4分、セブンイレブン京都双ヶ丘店まで徒歩5分、ウエルシアダックス右京太秦店まで徒歩6分、スーパーマツモト新丸太町店まで徒歩7分、業務スーパー太秦店まで徒歩8分、セブンイレブン京都常盤店まで徒歩8分、スイトピアまで徒歩1分、ファミリーマート太秦森ヶ東町店まで徒歩4分、ウエルシアダックス右京太秦東店まで徒歩5分、太秦安井公園まで徒歩6分で生活施設・買い物充実してます♪現況空き家につき即内覧・即ご入居可能!
※掲載されている物件データが現状と異なる場合は現状を優先します。

更新情報

情報更新日 2026年02月22日
次回更新予定日 2026年02月23日
取引条件有効期限 2026年02月22日

ローンシミュレーション

物件価格 1,050万円
頭金 万円
金利
借入期間
再計算
月々の返済額
年間の返済額
返済総額
利息合計
※ 毎回の返済額が開始から終了まで均等となる「元利均等返済」で算出しています。
※ 金利は期間中固定となる固定金利を採用しています。
※ 月々の返済額は小数点以下を繰り上げしております
※ シミュレーションでの結果は、あくまでも目安で、概算になります。実際にローン契約をする際は、詳細を金融機関にご確認ください。
※ 実際のローン契約時には諸費用・税金(手数料や印紙税、保証料など)が別途かかりますので、契約の際にご確認ください。

物件コード「45」をお伝えください。

電話でお問合せ LINEでお問合せ
電話 メール LINE
簡易お問合せ

お名前


メールアドレス


問合せ内容


OK