|
中古マンション
[価格]
980万円
ルミエール西京極
|
||||
|---|---|---|---|---|
| 所在地 | 沿線/駅 バス徒歩 |
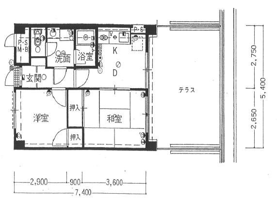
構造 間取 |
専有面積 バルコニ面積 |
築年月 引渡時期 |
| 京都市右京区西京極末広町 | 阪急京都線/西京極駅 徒歩10分 |
鉄筋コンクリート造 2DK |
39.66m² 23.11m² |
1983/08 即時 |

| 物件番号 | 22564 | 物件コード | 5307 |
|---|---|---|---|
| 物件名 | ルミエール西京極 | 種目 | 中古マンション |
| 住所1 | 京都市右京区西京極末広町 | 住所2 | 6 |
| 交通 | 阪急京都線 西京極駅まで 徒歩10分 | ||
| バス停名 | 東側町 | バス停時間 | 1分 |
| 専有面積 | 39.66m² | 間取 | 2DK |
| バルコニー面積 | 23.11m² | バルコニー方向 | 東 |
| 階/階建 | 6階/地上7階建 | 計測方法 | 壁芯 |
| 建物構造 | 鉄筋コンクリート造 | 築年数 | 築42年 |
| 西暦築年月 | 1983/08 | 現況 | 空室 |
| 管理費 | 4,800円 | 修繕積立費 | 6,200円 |
| 駐車場 | 空無 | 駐車場月額 | - |
| 管理組合 | 有 | 管理形態 | 全部委託 |
| 管理人状況 | 日勤 | 管理会社 | 和光建物総合管理 |
| 用途地域1 | 準工業地域 | 棟総戸数 | 187戸 |
| 土地権利 | 所有権 | 国土法届出 | 不要 |
| 小学校区(距離) | 西京極西 120m | 中学校区(距離) | 西京極 980m |
| 引渡時期 | 即時 | 取引態様 | 仲介 |
| インフラ設備・履歴・備考 | ☆ルミエール西京極☆エレベータ、二階以上、都市ガス、管理人常駐、人気の阪急沿線、駐輪場:自転車100円/月、バイク200円/月(台数制限無し)、即入居可、2025年9月壁・天井・全室クロス張替済 | ||
| 取引条件有効期限 | 2026年02月22日 | ||
|
地図を右クリックでルート検索が可能です。
|